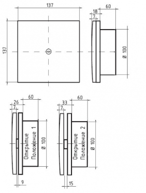
КИВ К1 предназначен для подачи уличного воздуха в помещения в системах вентиляции, преимущественно с принудительной вытяжкой (в жилых комнатах, в комнатах с постоянным нахождением людей; в помещениях с камином, в котельных, других помещениях, где нужен приток наружного воздуха). Применение клапана наиболее актуально в квартирах, где установлены пластиковые окна.
Главная _
Клапан Инфильтрации Воздуха Airone КИВ К1 100 1м с пластиковым козырьком
Клапан Инфильтрации Воздуха Airone КИВ К1 100 1м с пластиковым козырьком
По запросу
Быстрый заказДоставка в Октябрьский
Доставка до двери: от 660 руб., 4 - 5 дней
1 пункт выдачи в Октябрьском Подробнее
Бренд: Airone









